SERVICES


We handle a wide range of general construction projects common in Liberia—from residential homes and perimeter fences to septic tanks, culverts, and water towers. Whether it’s a small renovation or a major build, we deliver dependable results with quality materials and skilled workmanship.
General Construction
Equipment Rental Services
We rent out reliable construction equipment such as concrete mixers, water pumps, vibrators, and wheelbarrows. Our equipment helps you complete your project efficiently without the burden of purchasing and maintaining machines.
General Project Consultancy
Need expert guidance? Our team provides professional consulting services to support your construction or development project. We help you plan, budget, and execute with confidence, whether you’re in Liberia or abroad.










Drone Shot Videos & Photography
Showcase your property from a new perspective with high-quality drone photos and videos. Perfect for marketing, updates, or personal records—our aerial services highlight the beauty and progress of your project.

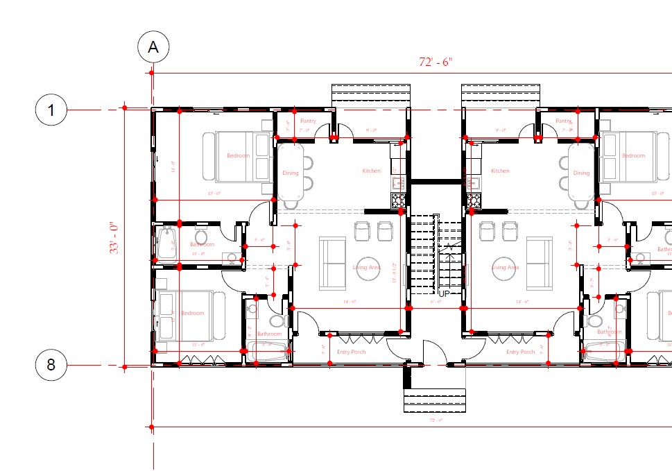
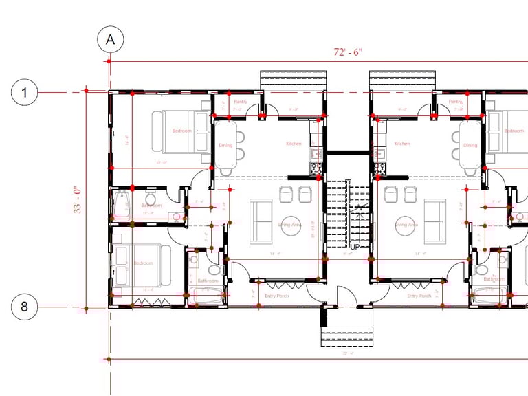
Architectural Design & Floor Plans
We design smart, functional, and visually appealing spaces tailored to your needs. From residential homes to commercial layouts, our architectural services bring your vision to life with detailed floor plans and modern designs.


From concept to completion, we manage every phase of your residential or commercial construction project. We turn your vision into reality—starting with architectural design and ending with a move-in-ready space built to the highest standards.

Residential & Commercial Construction



Concrete Blocks
Our concrete blocks are strong, durable, and made with top-grade materials—no shortcuts. Whether you’re building a home, fence, or commercial space, you can count on our blocks for safety and longevity.



Property Finder Services
We connect clients to the right properties—whether it’s an apartment, home, office space, or land. Through our property and land brokerage services, we make the search process easier by matching clients with options that fit their needs, budget, and location preferences.



Real Estate & Community Development
We specialize in property development and real estate solutions that build thriving communities. Whether you’re buying land, investing in a home, or contributing to neighborhood growth, we’re here to make your real estate goals a reality.

Get a free consultation
© Copyright 2025. All Rights Reserved. Heritage Builders & Realty Inc.


